2022年1月、大阪市京橋エリアにおいて4棟からなる「NTT WEST i-CAMPUS」が運用を開始しました。西日本電信電話株式会社(以下、NTT西日本)大阪研修センタ敷地の余剰地を活用し、新たにNTT西日本の本社社屋とオープンイノベーション施設「QUINTBRIDGE」を建設したプロジェクトです。NTT西日本の戦略機能の集約及び新事業創出を目的とし、同時に大阪城に面した旧本社敷地の開発も手掛けています。本記事では、設計・監理や維持管理を超え、お客様の不動産による経営戦略に入り込んでその課題にアプローチし、トータルサポートしたプロジェクトの全容をご紹介します。
プロジェクト担当者による対談
NTT WEST i-CAMPUS 鳥瞰
複数敷地の全体構想を立案
「NTT西日本の本社移転プロジェクトは2016年にスタートしました。今回の事業は建物単体の開発と異なり、新旧敷地の課題解決、移転計画、オープンイノベーション施設の計画が複合した難易度の高いプロジェクトとなりました。
築半世紀以上が経過した旧本社社屋は老朽化が進み、BCP機能の更新など多くの課題を抱えていました。また、NTT西日本の成長戦略の1つである不動産利活用による新規事業の創出に対応するべく、本社機能の移転計画が浮上しました。」(長谷川)
NTT西日本旧本社社屋(大阪市中央区)
「当社は、大阪城に面した旧本社敷地のほか大阪市京橋エリアの大阪研修センタ敷地など、複数の不動産について維持管理を担ってきました。それらの経験を基に、旧本社社屋の建物整備による継続利用と、旧本社社屋敷地の建替による不動産利活用・地域貢献の妥当性を多角的に検討し、本社機能を研修センタ敷地に移転することを立案しました。
移転計画と並行し、旧本社社屋敷地の利活用についても検討を開始しました。旧本社社屋敷地は大阪城公園と難波宮跡公園の間に位置することから観光面のポテンシャルが高く、街づくりの観点からホテルなどの誘致を企画・立案しました。
これらの提案が受け入れられ、2025年の大阪万博開催に向け、ハイグレードホテルの開発と、残置施設の減築及び広場整備などの工事が始まっています。当社は、都市計画コンサルの他、基本設計、実施設計監修・工事監理監修を担います」(長谷川)
企業不動産戦略の一翼を担う研修センタ敷地への移転計画を立案
「NTT西日本グループは環境変化に伴う課題に対し、ICT技術で解決し社会の発展に貢献しています。そのNTT西日本の人材育成の場として事業を支えてきたこの敷地において、グループ会社の連携と敷地のオープン化に取り組むことで人や文化が交わる京橋エリアの事業の起爆剤となり地域活性化への貢献を目指しました。
また、移転先となった京橋エリアの研修センタ敷地は約3万㎡の広さがあります。過去に実施したⅠ・Ⅱ期工事で、NTT西日本の人材育成の場となる研修施設とグループ会社オフィスの2棟を完成させており、容積率の約半分を消費していました。今回は予め計画していた配棟計画に沿って、容積を最大に活用し事業性の最大化に寄与しました。」(長谷川)
グループ連携とオープンイノベーション施設を計画
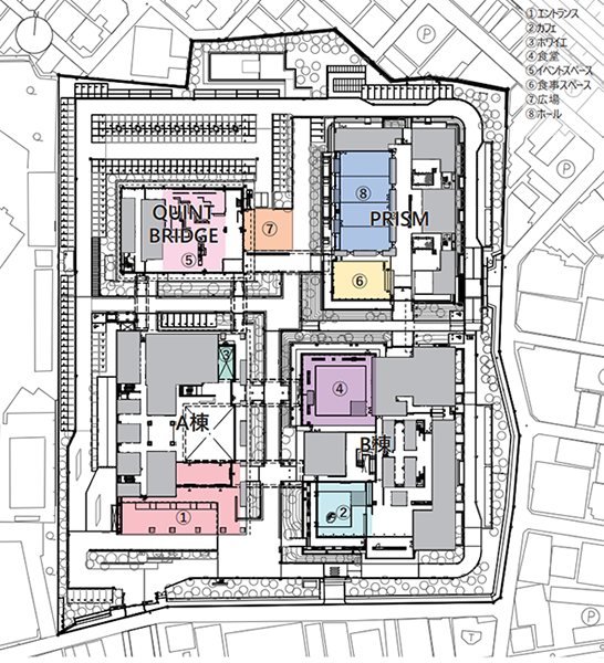
「「NTT WEST i-CAMPUS」は4つの棟による構成です。今回、新たに加わった新本社社屋「A棟」、オープンイノベーション施設「QUINTBRIDGE」と、既存の本社社屋「B棟」、研修拠点「PRISM」が配置されています。
これら4棟を低層部でつなぐことで、グループ連携の推進と利用者全体での建物共有化を図りました。2階レベルの渡り廊下のほか、地上部に屋根付き歩廊を新たに設けています。」(宗田)
NTT WEST i-CAMPUSの平面図
本社ビル(A棟)の外観
「グループ会社オフィスとして使われている「B棟」においては、組織再編に伴って移転計画を進めながら、セキュリティや通信環境などの水準を新本社社屋「A棟」と合わせるために機能やレイアウトを大幅に更新しました。
一方、スタートアップ企業や学生、研究者たちの活動の場となるのがオープンイノベーション施設「QUINTBRIDGE」です。スタートアップ企業を育成する大学機関や行政による施設はこれまでもありましたが、民間企業が設立するケースは珍しいと思います。運営事業者の選定段階から私たちがサポートしました。」(長谷川)
オープンイノベーション施設「QUINTBRIDGE」外観
多様な働き方と連携を支えるオフィス環境を構築
「新本社社屋「A棟」は、多様なオフィスフロアを構築することで「ABW」*1を可能にしています。基準階(6~11階)は間仕切り壁のない25m×70mのワンルームオフィスとしています。執務室をコの字型に配置し、自然採光により十分な明るさが得られる外周部はチームスペースとし、中央部にはコミュニケーションを誘発する「クリエイティブスペース」を確保しました。そこは「ガレージ」「ガーデン」「リビング」と3つのテーマごとに内装のデザインを変え、好きな居場所を自由に選択できるようにしています。また「クリエイティブスペース」に専有階段を設置することで、フロア間の親和性を高め、階を跨いでの利用がしやすいように工夫しています。」(宗田)
新本社社屋「A棟」のクリエイティブスペース「リビング」
*1 ABW(Activity Based Working アクティビティ・ベースド・ワーキング): 仕事の目的や内容に合わせて自由に働く場所や時間を選択できる働き方
「ABWのしつらえは、3階の食堂やカフェにも反映しました。ランチミーティングや大人数でディスカッションすることが可能です。この他5階は小区画オフィスで構成し、福利厚生施設などの付随機能を収容しています。」(長谷川)
「QUINTBRIDGEの1、2階は、社外の人たちが自由に使える計画です。1階はイベントやプレゼンテーションの場として利用でき、2階は工房やスタジオ等、実践へのサポートを得られる環境が整えられています。またコワーキングスペースとして利用が可能で、現在、多くの方々が活用されており、私もQUINTBRIDGEを訪れると、1階大空間を打ち合わせや個人作業の場所として活用しています。「テナントとしてQUINTBRIDGEに入居したい」というニーズがとても多く、そうした改修のリクエストに応えています。」(仙波)
QUINTBRIDGEの1階大空間
竣工後に現れ始めた効果と今後の展望
「現場では、当社のサービス部門の社員2人が常駐し、お客様と一体となって保守・運営の企画・立案・実行を担っています。何よりうれしいのは竣工後も、「次はこうした活動がしたい。そのために付加すべき機能を一緒に検討してほしい」といった相談が日々、お客様から寄せられていることです。「もっとよくしよう」「もっとこうした使い方をしよう」などお客様とともに付加価値を創出し続けており、「キャンパス」という名の通り、人々の交流や関わりが深まっていることを実感しています。こういった効果は、設計・監理、維持管理のみならず不動産価値を最大限引き出す移転計画や利活用計画などお客様の経営戦略に対してトータルサポートできる当社のソリューションならではだと思います。」(長谷川)
「QUINTBRIDGEは2022年3月の運用開始から1年で延べ利用者数が7.2万人を突破しました。建物をつくって終わりではなく、これからが始まりだと思っています。実際に使われる人たちの意見に耳を傾けながら、社会のニーズやお客様の経営戦略に即した環境を日々、アップデートしていきたいと思います。」(仙波)
「今回の事業は建物単体では語れないものでした。Ⅰ・Ⅱ・Ⅲ期一連のプロジェクトで設計思想が受け継がれ、地域社会への貢献が可能になったと感じています。私は、竣工と同時に四国事業部に異動になりましたが、異動先でNTT WEST i-CAMPUSを見学した人から設計を依頼される機会もありました。NTT WEST i-CAMPUSの設計をきっかけに、様々な関係が醸成され、新たなビジネスが生まれ、社会貢献につながっていく──そんな将来へのつながりの一端に関われたことは設計者冥利に尽きます。これからもお客様の課題解決を通し、社会に貢献し続けます。」(宗田)
Newsletterえふ・マガ登録
NTTファシリティーズがお届けするメールマガジン『えふ・マガ』。
環境や建築、レジリエンスなどに関する社会動向を、有識者のインタビューやビジネスコラム、プロジェクト事例を通じて、日常やビジネスの現場で参考になる情報をお届けします。
お気軽にご登録ください。


